无负压供水设备是高效率的节能型无塔供水设备,广泛用到各行业二次供水增压。若需要设备要良好高效的运行,除了产品自身质量之外,安装也是一个较大的因素,下面图文结合介绍两种无负压供水设备的安装方式及所需辅材。

图1 平行式结构的罐式无负压供水设备安装示意图

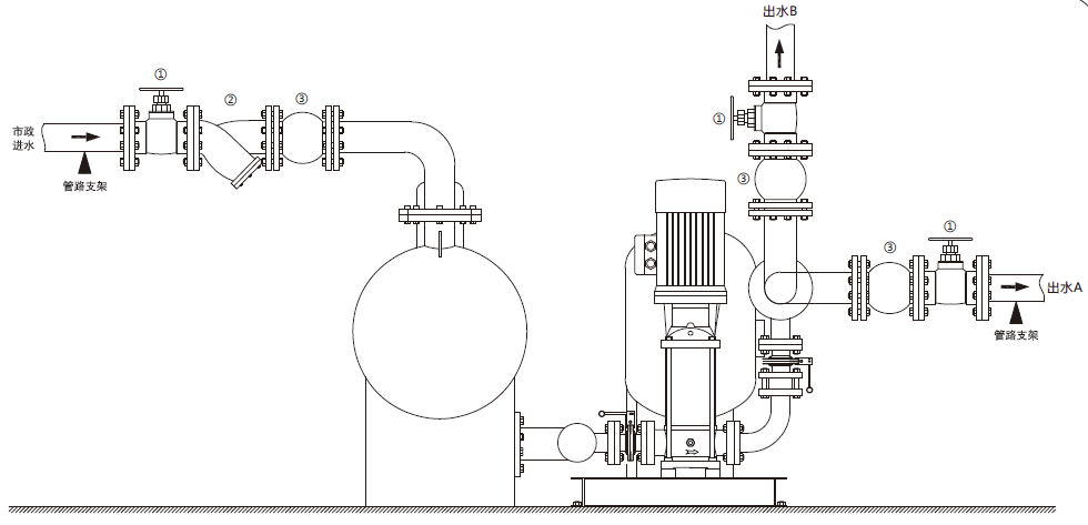
图2 垂直式结构的罐式无负压供水设备安装示意图
安装所需附件
①:进出水阀门,方便检修和调试。
②:柔性软接头方便安装拆卸。
③:Y型过滤器,防止杂质进入水泵;
安装技术要求
1、无负压稳流罐进水方向可根据实际需求选装消毒器。
2、设备进出水管必须有独立的支架,禁止将管路重量施加到设备上。
3:安装设备的机台务必水平且平整。
二、箱式无负压供水设备

图3 箱式无负压供水设备安装示意图
安装所需附件
①:进出水阀门,方便检修和调试。
②:柔性软接头方便安装拆卸。
③:Y型过滤器,防止杂质进入水泵;
安装技术要求
1、无负压稳流罐进水方向可根据实际需求选装消毒器。
2、设备进出水管必须有独立的支架,禁止将管路重量施加到设备上。
3、安装设备的机台务必水平且平整。 Stable Trader
